Description
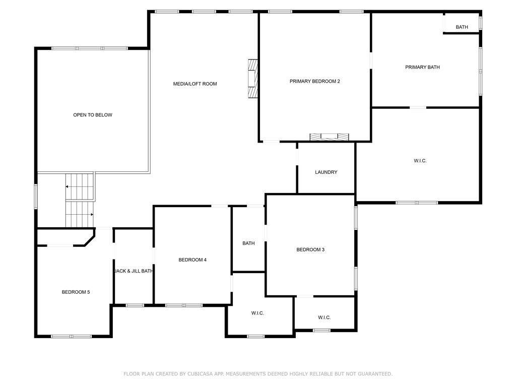
Almost Complete estimated by December 2025, Professional Photos coming soon! This stunning new construction estate delivers an amazing in-law/ guest suite on the main and very large primary bedroom and bathroom upstairs, inviting you to experience refined living where classic architecture meets modern sophistication. Check out this floorplan it is one of the most desired. Showcasing exceptional craftsmanship and refined finishes throughout, this custom home is designed for both entertaining and everyday living. From the moment you enter, you're greeted by a light-filled open layout featuring soaring ceilings, wide-plank hardwoods, designer lighting, and detailed millwork that create an atmosphere of understated luxury. At the heart of the home is a stunning great room with a statement fireplace that opens seamlessly to the chef's kitchen, complete with an oversized quartz waterfall island, custom cabinetry, porcelain countertops, designer backsplash, and a walk-in pantry with built-ins. An upgraded appliance package will elevate the kitchen's design, offering the perfect balance of beauty and functionality. The formal dining room and breakfast area overlook the covered patio, ideal for year-round gatherings. The main-level in-law suite offers a private retreat with a spacious ensuite bath and walk-in closetperfect for extended family or guests. A dedicated office, elegant guest bath, functional mudroom, and four-car garage with insulated walls, auto openers, and 220V EV outlets complete the first floor. Upstairs, the primary suite is a luxurious haven featuring a private fireplace, spa-style bath with soaking tub, frameless glass shower, dual vanities, and a custom walk-in closet with built-ins. A media loft with fireplace and wet bar provides the perfect setting for movie nights or casual entertaining. Three additional bedrooms each include walk-in closets and ensuite or Jack-and-Jill baths, while a second laundry room adds convenience. Outdoor living is equally impressive with four-sided brick construction, professional landscaping, irrigation system, and a level backyard ideal for a future pool. The covered patio creates an inviting space for relaxing or entertaining. Energy-efficient features include foam insulation, zoned HVAC, tankless water heater, and ENERGY STAR windows. Ideally located near Braselton Highway, Sugarloaf Parkway, and I-85, and just minutes from The Shoppes at Webb Gin, downtown Grayson, parks, dining, and top-rated Gwinnett schools.
-
5BEDS
-
0.92ACRES
-
5BATHS
-
11/2 BATHS
-
5,383SQFT
-
$238$/SQFT
School Information
Description
Almost Complete estimated by December 2025, Professional Photos coming soon! This stunning new construction estate delivers an amazing in-law/ guest suite on the main and very large primary bedroom and bathroom upstairs, inviting you to experience refined living where classic architecture meets modern sophistication. Check out this floorplan it is one of the most desired. Showcasing exceptional craftsmanship and refined finishes throughout, this custom home is designed for both entertaining and everyday living. From the moment you enter, you're greeted by a light-filled open layout featuring soaring ceilings, wide-plank hardwoods, designer lighting, and detailed millwork that create an atmosphere of understated luxury. At the heart of the home is a stunning great room with a statement fireplace that opens seamlessly to the chef's kitchen, complete with an oversized quartz waterfall island, custom cabinetry, porcelain countertops, designer backsplash, and a walk-in pantry with built-ins. An upgraded appliance package will elevate the kitchen's design, offering the perfect balance of beauty and functionality. The formal dining room and breakfast area overlook the covered patio, ideal for year-round gatherings. The main-level in-law suite offers a private retreat with a spacious ensuite bath and walk-in closetperfect for extended family or guests. A dedicated office, elegant guest bath, functional mudroom, and four-car garage with insulated walls, auto openers, and 220V EV outlets complete the first floor. Upstairs, the primary suite is a luxurious haven featuring a private fireplace, spa-style bath with soaking tub, frameless glass shower, dual vanities, and a custom walk-in closet with built-ins. A media loft with fireplace and wet bar provides the perfect setting for movie nights or casual entertaining. Three additional bedrooms each include walk-in closets and ensuite or Jack-and-Jill baths, while a second laundry room adds convenience. Outdoor living is equally impressive with four-sided brick construction, professional landscaping, irrigation system, and a level backyard ideal for a future pool. The covered patio creates an inviting space for relaxing or entertaining. Energy-efficient features include foam insulation, zoned HVAC, tankless water heater, and ENERGY STAR windows. Ideally located near Braselton Highway, Sugarloaf Parkway, and I-85, and just minutes from The Shoppes at Webb Gin, downtown Grayson, parks, dining, and top-rated Gwinnett schools.
Listings identified with the FMLS IDX logo come from FMLS, are held by brokerage firms other than the owner of this website and the listing brokerage is identified in any listing details. Information is deemed reliable but is not guaranteed.
If you believe any FMLS listing contains material that infringes your copyrighted work, please click here to review our DMCA policy and learn how to submit a takedown request.
© 2025 First Multiple Listing Service, Inc. Data last updated 2025-12-07T08:05:34.527. For issues regarding this website, please contact BoomTown.
