Description
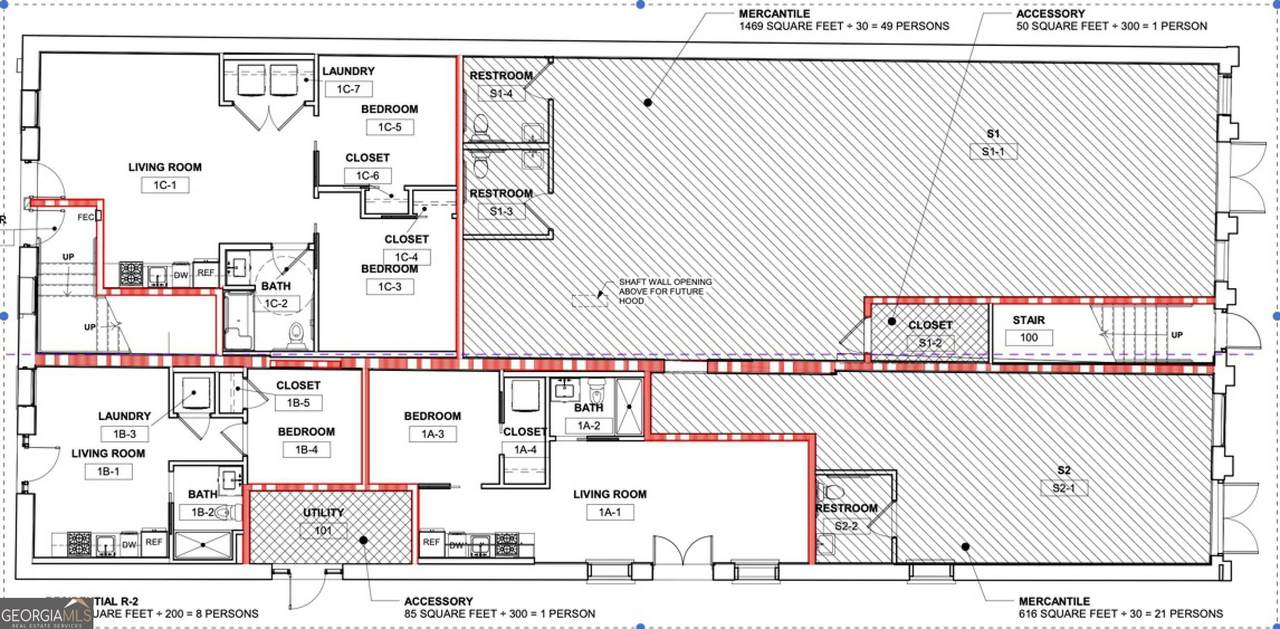
***Pre-Leasing***Build-to-Suit Downtown Barnesville Commercial Space Gross Lease (No CAM). Opportunity to establish your business in the heart of historic downtown Barnesville. The Murphey Building offers approximately 2085 square feet of pre-construction commercial space, ready for tenant build-out and customization. This large, flexible footprint can accommodate a wide range of uses including retail, studio, showroom, office, or specialty food concepts. Space allows for a potential small kitchen or food prep area, making it ideal for a cafe, deli, or eatery concept (subject to approvals). Priced at $1.84/SF/MO, Suite S1 offers approximately 1,469 square feet of pre-construction commercial space, ready for tenant build-out and customization. This large, flexible footprint can accommodate a wide range of uses including retail, studio, showroom, office, or specialty food concepts. Space allows for a potential small kitchen or food prep area, making it ideal for a cafe, deli, or eatery concept (subject to approvals). Priced at $2.44/SF/MO, Suite S2 is a smaller pre-construction commercial space ideally suited for an office, professional service, or boutique business. With approximately 616 square feet, this unit offers a clean, efficient footprint that can be finished to match your business needs. Perfect for attorneys, accountants, consultants, therapists, or small creative offices seeking a downtown presence without excess space. Located just steps from Main Street, the Murphey Building offers excellent downtown visibility and the rare opportunity to shape your space from the ground up. Building highlights: Prime downtown location; Build-to-suit opportunity; Flexible open layout; Gross lease - no CAM or pass-through fees; Ideal for retail, office, or food-related uses
-
0BEDS
-
0.11ACRES
-
0BATHS
-
01/2 BATHS
-
2,085SQFT
-
$1$/SQFT
School Ratings & Info
Description
***Pre-Leasing***Build-to-Suit Downtown Barnesville Commercial Space Gross Lease (No CAM). Opportunity to establish your business in the heart of historic downtown Barnesville. The Murphey Building offers approximately 2085 square feet of pre-construction commercial space, ready for tenant build-out and customization. This large, flexible footprint can accommodate a wide range of uses including retail, studio, showroom, office, or specialty food concepts. Space allows for a potential small kitchen or food prep area, making it ideal for a cafe, deli, or eatery concept (subject to approvals). Priced at $1.84/SF/MO, Suite S1 offers approximately 1,469 square feet of pre-construction commercial space, ready for tenant build-out and customization. This large, flexible footprint can accommodate a wide range of uses including retail, studio, showroom, office, or specialty food concepts. Space allows for a potential small kitchen or food prep area, making it ideal for a cafe, deli, or eatery concept (subject to approvals). Priced at $2.44/SF/MO, Suite S2 is a smaller pre-construction commercial space ideally suited for an office, professional service, or boutique business. With approximately 616 square feet, this unit offers a clean, efficient footprint that can be finished to match your business needs. Perfect for attorneys, accountants, consultants, therapists, or small creative offices seeking a downtown presence without excess space. Located just steps from Main Street, the Murphey Building offers excellent downtown visibility and the rare opportunity to shape your space from the ground up. Building highlights: Prime downtown location; Build-to-suit opportunity; Flexible open layout; Gross lease - no CAM or pass-through fees; Ideal for retail, office, or food-related uses
© 2026 Georgia Multiple Listing Service, Inc. All rights reserved. The data relating to real estate for sale or lease on this web site comes in part from GAMLS. Real estate listings held by brokerage firms other than Dillard and Company Realty Group | Atlanta Fine Homes Sotheby’s International Realty are marked with the GAMLS logo or an abbreviated logo and detailed information about them includes the name of the listing broker. IDX information is provided exclusively for consumers' personal, non-commercial use and may not be used for any purpose other than to identify prospective properties consumers may be interested in purchasing. Information is deemed reliable but is not guaranteed accurate by GAMLS or Dillard and Company Realty Group | Atlanta Fine Homes Sotheby’s International Realty. Data last updated: 2026-03-07T13:10:42.173.