Description
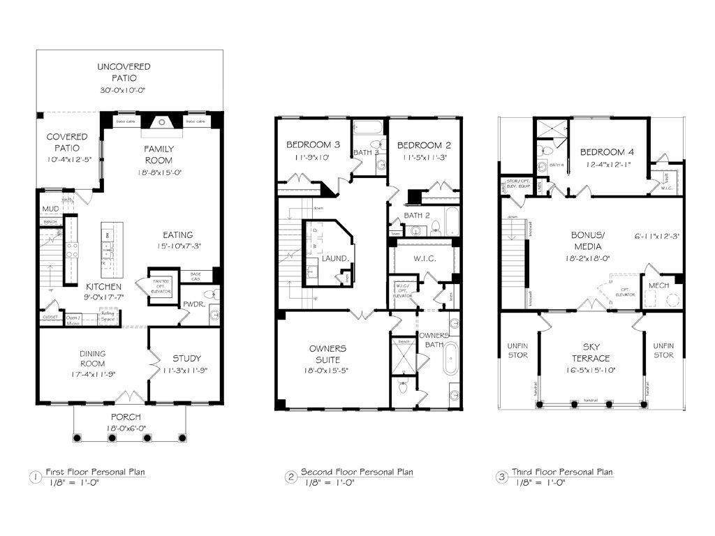
Ask me about our incentives! To be completed for a move in of November, newly released Stratford 4/4/1 plan, elevator-ready and sky terrace with views of the North GA mountains! Lot 5, our Stratford plan, is an absolutely stunning build with a 3-car garage, by JW Collection, founded by John Wieland. The Heritage at Farmer's Crossing is an exclusive, walkable enclave of 16 luxury three-story townhomes designed to honor the historic character and natural beauty of the area. This exquisite JWC designer plan has a wonderful living space for all your entertaining needs, with an abundance of windows and natural light. As you enter the home, you will find soaring 10ft ceilings throughout the main level. You will be pleased to discover many upgraded features throughout, including quartz countertops, beautiful soft-close cabinetry that extends to the ceiling in the kitchen, a large kitchen island equipped with a double trash pullout, sink, and dishwasher. The kitchen also boasts built-in KitchenAid stainless steel appliances with tile to the ceiling behind your designer wood hood. Enjoy the wood shelving in your walk-in pantry. Designer hardwood flooring is on the entire main level and all stairs. Step into the bright and warm Great Room, which features a custom-trimmed, detailed fireplace with gas logs, built-in cabinetry, and a stained cedar mantle. Upstairs, the owner's suite is its own private retreat to relax at the end of a long day. The owner's bath is a spa experience with a free-standing soaking tub, large walk-in shower with a bench, shampoo niche, frameless door, and tile all the way to the ceiling. Attached to the spa bath you will find separate Owners closets with custom built-in shelving. Two additional secondary guest bedrooms include private baths with quartz countertops, designer tile to the ceiling in all showers/bath. As you approach the top floor, be ready to be amazed with the surrounding views of the North Georgia Mountains from your sky terrace. You can spend mornings watching the sunrise with a cup of coffee or evenings by the fireplace with a breathtaking sunset from your sky terrace. One of the bonus features of this home is a detached 3 CAR GARAGE with separate entrance and approximately 600 sq. ft of unfinished storage that can be converted to a game room, climate-controlled storage, or an office suite suited to your needs. Also, enjoy your evenings on the oversized covered rear patio. This home has it all! Just steps to vibrant Downtown Ball Ground with the perfect blend of luxury and small-town charm. Adjacent to Calvin Farmer Park, and walking distance to Ball Ground shops, dining, Botanical Garden, and sporting activities. Easy access to Cumming, Canton, Alpharetta, Woodstock, Jasper and the North Georgia Mountains, this location is unbeatable. Do not wait, as there are limited opportunities! Call us today for details or to schedule a tour.
-
4BEDS
-
N/AACRES
-
4BATHS
-
11/2 BATHS
-
3,472SQFT
-
$248$/SQFT
School Information
Description
Ask me about our incentives! To be completed for a move in of November, newly released Stratford 4/4/1 plan, elevator-ready and sky terrace with views of the North GA mountains! Lot 5, our Stratford plan, is an absolutely stunning build with a 3-car garage, by JW Collection, founded by John Wieland. The Heritage at Farmer's Crossing is an exclusive, walkable enclave of 16 luxury three-story townhomes designed to honor the historic character and natural beauty of the area. This exquisite JWC designer plan has a wonderful living space for all your entertaining needs, with an abundance of windows and natural light. As you enter the home, you will find soaring 10ft ceilings throughout the main level. You will be pleased to discover many upgraded features throughout, including quartz countertops, beautiful soft-close cabinetry that extends to the ceiling in the kitchen, a large kitchen island equipped with a double trash pullout, sink, and dishwasher. The kitchen also boasts built-in KitchenAid stainless steel appliances with tile to the ceiling behind your designer wood hood. Enjoy the wood shelving in your walk-in pantry. Designer hardwood flooring is on the entire main level and all stairs. Step into the bright and warm Great Room, which features a custom-trimmed, detailed fireplace with gas logs, built-in cabinetry, and a stained cedar mantle. Upstairs, the owner's suite is its own private retreat to relax at the end of a long day. The owner's bath is a spa experience with a free-standing soaking tub, large walk-in shower with a bench, shampoo niche, frameless door, and tile all the way to the ceiling. Attached to the spa bath you will find separate Owners closets with custom built-in shelving. Two additional secondary guest bedrooms include private baths with quartz countertops, designer tile to the ceiling in all showers/bath. As you approach the top floor, be ready to be amazed with the surrounding views of the North Georgia Mountains from your sky terrace. You can spend mornings watching the sunrise with a cup of coffee or evenings by the fireplace with a breathtaking sunset from your sky terrace. One of the bonus features of this home is a detached 3 CAR GARAGE with separate entrance and approximately 600 sq. ft of unfinished storage that can be converted to a game room, climate-controlled storage, or an office suite suited to your needs. Also, enjoy your evenings on the oversized covered rear patio. This home has it all! Just steps to vibrant Downtown Ball Ground with the perfect blend of luxury and small-town charm. Adjacent to Calvin Farmer Park, and walking distance to Ball Ground shops, dining, Botanical Garden, and sporting activities. Easy access to Cumming, Canton, Alpharetta, Woodstock, Jasper and the North Georgia Mountains, this location is unbeatable. Do not wait, as there are limited opportunities! Call us today for details or to schedule a tour.
Listings identified with the FMLS IDX logo come from FMLS, are held by brokerage firms other than the owner of this website and the listing brokerage is identified in any listing details. Information is deemed reliable but is not guaranteed.
If you believe any FMLS listing contains material that infringes your copyrighted work, please click here to review our DMCA policy and learn how to submit a takedown request.
© 2025 First Multiple Listing Service, Inc. Data last updated 2025-11-10T12:04:27.317. For issues regarding this website, please contact BoomTown.
